Property ID : 2644
For Sale £600,000.00 - Houses
With the benefit of 100′ secluded west facing garden, this four bedroom semi-detached home in recent years has been the subject of thoughtful enlargement to provide a surprisingly spacious family home, offering great flexibility in the arrangement of the accommodation.
Enjoying an elevated position, ‘New Cutlands’ is ideally located withing walking distance of the High Street village shops and highly regarded Junior School. Transport links by both road and rail are easily accessible. For the golfing enthusiast, Nazeing has its own golf course, whilst the surrounding countryside offers a wide choice of leisure and sporting pursuits.
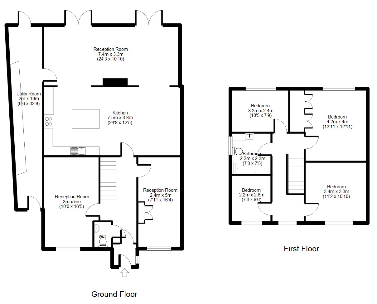
SUMMARY OF ACCOMMODATION
*ENTRANCE PORCH*
*BRIGHT RECEPTION HALL*
*CLOAKROOM*
*GOOD SIZE SITTING ROOM*
*SEPARATE DINING ROOM*
*SPACIOUS OPEN PLAN BESPOKE KITCHEN/BREAKFAST ROOM*
*BRIGHT FAMILY ROOM*
*33′ LAUNDRY ROOM/PANTRY*
*FOUR BEDROOMS*
*FAMILY BATHROOM*
*GAS CENTRAL HEATING & DOUBLE GLAZED WINDOWS*
*100FT WEST FACING REAR GARDEN BACKING ONTO OPEN FIELDS*
*OFF STREET PARKING FOR SEVERAL VEHICLES*
Part glazed entrance door leading to:
ENTRANCE PORCH 4’7 x 4’1 Leaded light window to side. Dado rail and cloaks hanging spaced. Wood clad ceiling and tiled flooring, multi paned door leading to the:
RECEPTION HALL 15’5 x 6′ Wood effect flooring and staircase leading to the first floor landing with polished wooden hand rail. Panelled doors lead to the dining room, kitchen/breakfast room, sitting room and further door leads to the:
CLOAKROOM 4’9 x 2’7 Obscure glazed window to front. Partly tiled in quality wall and floor ceramics to complement a suite comprising wash hand basin and low flush W.C.
DINING ROOM 17’4 x 7’10 Leaded light window to front, wood effect flooring and dado rail. Cupboard to one wall with four louvered doors also housing the gas and electricity meters with further storage shelving below. Radiator.
SITTING ROOM 16’5 x 10 Leaded light window with front aspect, wood effect flooring, radiator, television and media points.
KITCHEN/BREAKFAST ROOM 24’8 x 13’4 Fitted with bespoke base units, with a mixture of wooden and granite working surfaces over. Stainless steel, single drainer, sink unit with mixer tap and cupboards below. Spaces for oven, fridge and freezer. Ample open shelf storage. Italian stone flooring. Radiator with pine shelf above. Feature fireplace with electric fire marble surround, matching hearth and mantel with two openings either side leading to the:
FAMILY ROOM 24’3 x 10’7 Two sets of French doors leading out onto the sun terrace, Italian stone slab flooring, exposed brick wall to one side and feature fire place with inset electric wood style burner and granite hearth. Two radiators both with quality wooden decorative covers. Media points and panelled door leading to the:
LAUNDRY AND PANTRY ROOM 33’5 x 6’8 Wood effect floor tiles, part glazed door leading the front of the property and glazed door leading to the rear garden. Fitted with bespoke wall and base units plus ample open shelving, wood surfaces over. Space for washing machine, tumble driers and fridge and freezer.
FIRST FLOOR LANDING 16′ x 5’5 Leaded light window overlooking the front garden. Access to loft, providing excellent potential to further enlarge, subject of course to the necessary approvals, and also housing the combi gas central heating boiler. Panelled doors to bedrooms and bathroom, further door to:
FIRST BEDROOM 13′ x 11’6 Leaded light window with views over the rear garden. Radiator with quality wooden decorative cover. Built in wardrobes to one wall with additional storage cupboard above. TV and media points.
SECOND BEDROOM 11’4 x 10’10 Leaded light window to front, wood effect flooring. Radiator dado rail, TV and media points. Open shelving.
THIRD BEDROOM 10’4 x 8’3 Window with rear garden aspect. Wood effect flooring. Radiator.
FOURTH BEDROOM 8’1 x 7’2 (Currently used as a dressing room) Window to front with wood effect flooring.
BATHROOM 7’7 x 7’6 Obscure glazed window to side. Part tiled in quality wall and floor ceramics, suite comprising panelled bath with mixer tap and shower attachment, glass panel and glass shower screen door with chrome handle. Wash hand basin with cupboards below and adjacent shelf with additional cupboard and drawers below. low flush w.c. Wall mounted cabinet with mirrored doors. Chrome heated towel rail and ceiling spot lighting.
EXTERIOR
Front – The property is approached via a wide split-level paved driveway (currently under construction) providing parking for several vehicles. To the side of the property is a double glazed door which leads into the Laundry Room/Pantry, which in turn leads though to the garden.
Rear Garden – The rear garden enjoys a westerly aspect and extends to over 100′. Laid principally to lawn the garden is well secluded with panelled fencing and mature conifers. To one side of the garden is a square terrace and under cover barbeque area. Steppingstones lead to the third level of the garden where there is an ornamental fishpond and timber garden shed. Directly behind the property is a wide paved sun terrace offering a sunny spot from where to sit and enjoy the garden. There are light and water supplies connected.
COUNCIL TAX BAND. E
FREEHOLD
Redress Scheme: – The Property Ombudsman –
VIEWING: By appointment with Owners Sole Agents –
please contact: JEAN HENNIGHAN PROPERTIES – telephone
Important Note One: To conform with the new E.C. Money Laundering Directive, purchasers are now required to provide photographic identification in the form of a passport or drivers license together with a copy of a recent utility bill. We would recommend that prospective purchasers have these documents available to save any delay, when a sale is agreed.
Important Note Two: These sales particulars have been prepared by Jean Hennighan Properties upon the instructions of the vendor(s) and do not constitute any part of a contract. Services, fittings and equipment referred to within have not been tested (unless otherwise stated) and no warranties can be given. All measurements are approximate and are for descriptive purposes only. Accordingly, the prospective purchaser(s) must make their own enquiries regarding such matters. Det 2644
























